3
$675,000 Sale
Listed 7 hours ago
82 GENEST STREET
· 4+1
· 0.5
· 5
· 1500 - 2000
Key Facts
Key facts for 82 GENEST STREET
Property Type
Lots/Land
Parking
Garage: Yes, 5 parking
MLS #
X12448167
Size
1500 - 2000 sqft
Basement
Partially finished, N/A (Partially finished)
Listed on
-
Lot size
-
Tax
-
Days on Market
-
Year Built
-
Maintenance Fee
-
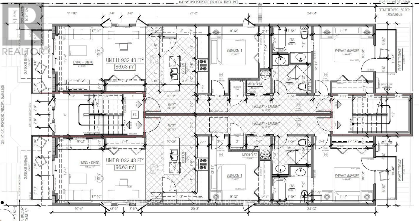
Description
8 x 2-bedroom units. Minor variance allows for a substantially larger (3210 SF) footprint than available elsewhere in Beechwood Village. Drawings included with sale depict a pair of large 2 bedroom units on each floor. Situated in rapidly gentrifying Beechwood Village; appreciation is expected to be... exceptional. Rentable duplex on site in good condition (market rents ~$44k/year). Cross listed @ X12447309 (id:10452)
Similar Properties (No results)
Room Types
Bathroom
-
Measurements not available
0 sqft
Bedroom
-
Dimensions 2.71 m x 1.85 m
53.96 sqft
Bedroom
-
Dimensions 3.32 m x 3.07 m
109.71 sqft
Listing courtesy of: SUTTON GROUP - OTTAWA REALTY
This REALTOR.ca listing content is owned and licensed by REALTOR® members of The Canadian Real Estate Association.